CDKA系列
与传统空调末端相比,冷梁系统是更经济、更环保得选择。一次风接口主要用于消除室内湿负荷和保证室内新风,通过诱导喷嘴使室内空气进入盘管,并于一次风混合送入房间,实现较大的冷热量输出。
与传统空调末端相比,冷梁系统是更经济、更环保得选择。一次风接口主要用于消除室内湿负荷和保证室内新风,通过诱导喷嘴使室内空气进入盘管,并于一次风混合送入房间,实现较大的冷热量输出。
与传统空调末端相比,冷梁系统是更经济、更环保得选择。一次风接口主要用于消除室内湿负荷和保证室内新风,通过诱导喷嘴使室内空气进入盘管,并于一次风混合送入房间,实现较大的冷热量输出。
可选2管制或4管制系统;
高诱导比,制冷制热功率大;
无风机,静音节能;
设备高度低,可用于低层高楼层;
与冷吊顶系统结合,用来消除高峰负荷;
可明装或暗装。
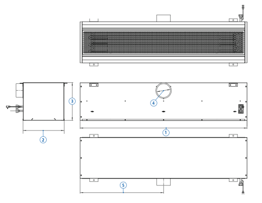
Klimakontor CDKA外形尺寸

1 | 总长度(mm) | 1195 | 1495 | 1795 | 2195 |
2 | 总宽度(mm) | 296 | 296 | 296 | 296 |
3 | 总高度(mm) | 271 | 271 | 271 | 271 |
4 | 一次风接口直径(mm) | 98 | 98 | 98 | 98 |
5 | 一次风接口个数(个) | 1 | 1 | 2 | 2 |
安装说明
CDKA诱导型冷梁的安装可以按序进行,可任意个数拼接,包括安装首段、中段、末端,此外为了达到室内环境视觉效果,可以只安装外壳,不安装换热器。
