CDKU系列
与传统空调末端相比,冷梁系统是更经济、更环保得选择。风机型冷梁适用于冷负荷很大的房间,内置高性能诱导风机,结合水媒供冷与供热的优点,具有换热量大、节能效果好、噪音小、出风均匀、舒适度高等优点。CDKU风机型冷梁可在干湿两种工况下运行,内部自带冷凝水托盘,可选装冷凝水提升泵,有效解决制冷时冷凝水产生和排放问题。
与传统空调末端相比,冷梁系统是更经济、更环保得选择。风机型冷梁适用于冷负荷很大的房间,内置高性能诱导风机,结合水媒供冷与供热的优点,具有换热量大、节能效果好、噪音小、出风均匀、舒适度高等优点。CDKU风机型冷梁可在干湿两种工况下运行,内部自带冷凝水托盘,可选装冷凝水提升泵,有效解决制冷时冷凝水产生和排放问题。
行政办公建筑
商务客房
接待区和门厅
展览室
三速可调高性能风机,实现精准控温;
与冷吊顶系统结合,用来消除高峰负荷;
设备高度低,可用于低层高楼层;
快装阀门,安装便捷;
内置静压箱,出风均匀。
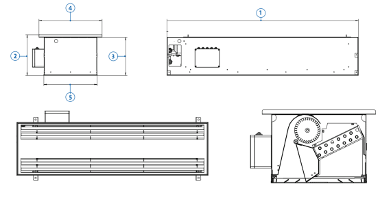
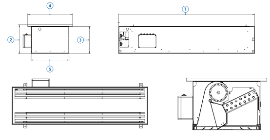
Klimakontor CDKU外形尺寸


1 | 总长度(mm) | 1000 | 1250 | 1500 |
2 | 总高度(mm) | 265 | 265 | 265 |
3 | 外壳高度(mm) | 249 | 249 | 249 |
4 | 总宽度(mm) | 410 | 410 | 410 |
5 | 外壳宽度(mm) | 345 | 345 | 345 |
安装说明
CDKU风机型冷梁的安装可以按序进行,可任意个数拼接,包括安装首段、中段、末端,此外为了达到室内环境视觉效果,可以只安装外壳,不安装换热器及风机。
